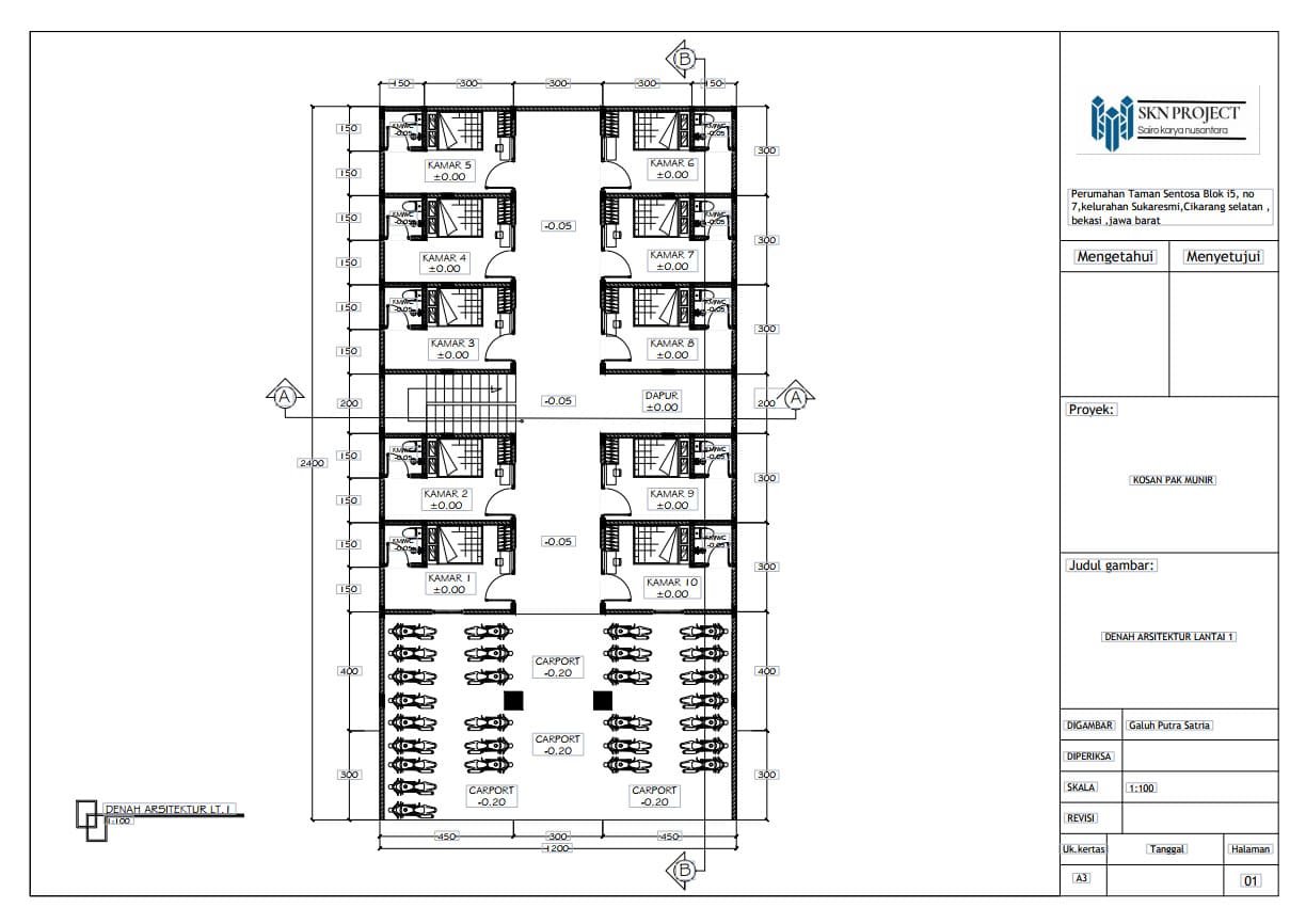
✔ Desain sesuai kebutuhan pengguna
✔ Detail jelas dan mudah dipahami
✔ Siap untuk proses perizinan & konstruksi








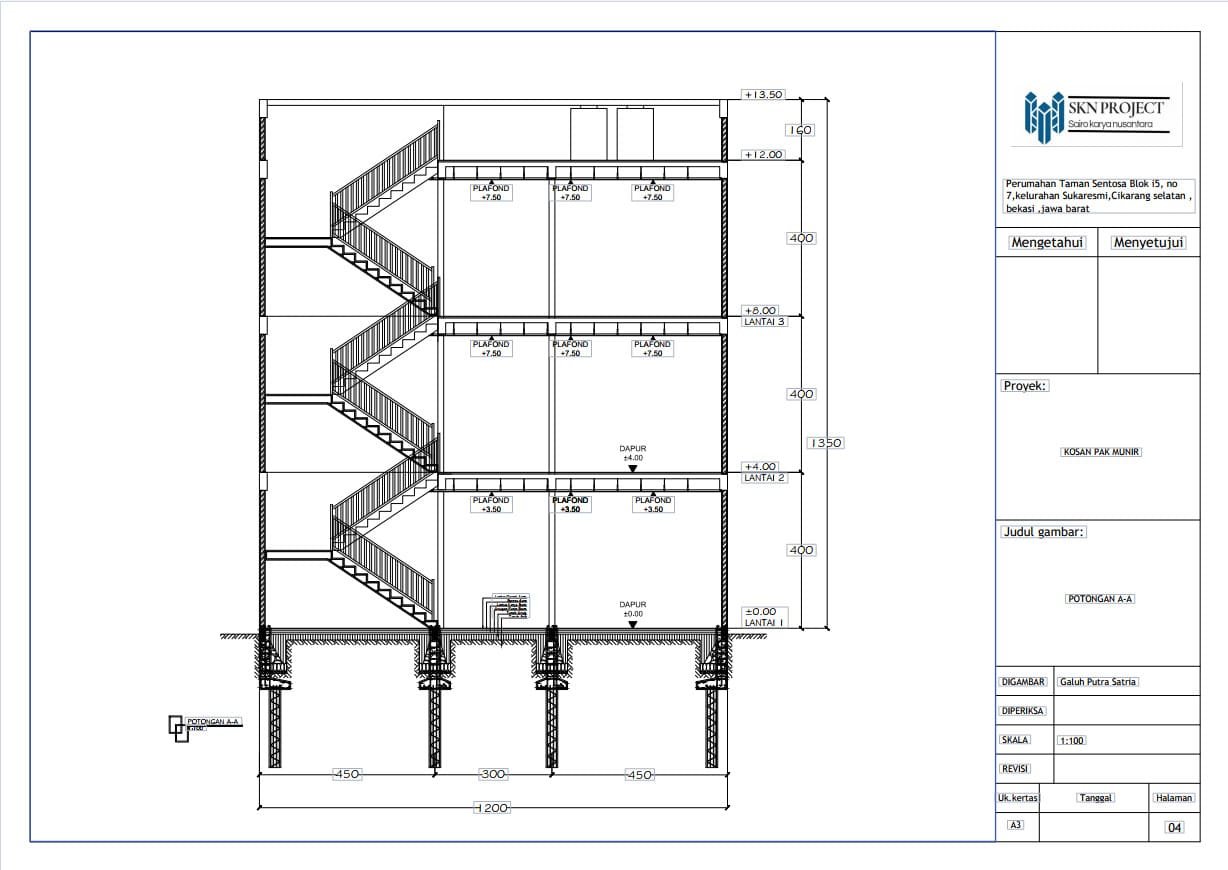
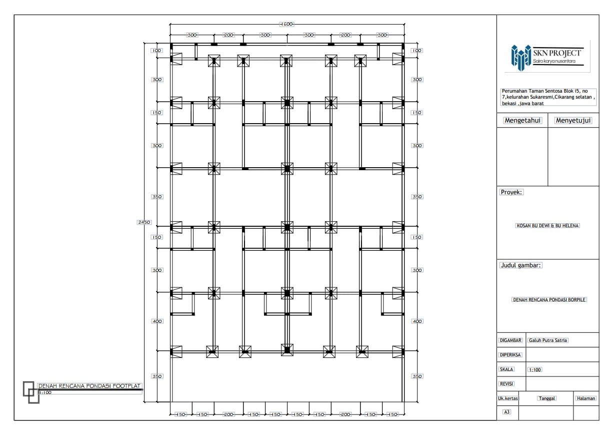
✔ Gambar pondasi, balok, kolom, dan pelat
✔ Detail struktur yang presisi
✔ Mendukung kelancaran pelaksanaan di lapangan





✔ Sistem listrik, plumbing, dan mekanikal terencana dengan baik
✔ Jalur instalasi jelas dan efisien
✔ Memudahkan proses instalasi dan perawatan



